詳細写真・間取り図
富士宮市 小泉(中古住宅)
価格:1,260万円
-
POINT
-
生活便利な住宅地
陽当たり良好な6DK住宅
現地ご案内図
物件詳細
| 物件種目 | 戸建中古 |
|---|---|
| 価格 | 1,260万円 |
| 土地面積 | 202.40㎡(61.22坪) |
| 建物面積 | 126.37㎡(38.22坪) |
| 構造・規模 | 木造2階建て |
| 所在地 | 富士宮市小泉1914-7、1914-11 |
| 交通 | JR 源道寺駅 約1,200m |
| 土地権利 | 所有権 |
| 都市計画 | 市街化区域 |
| 建ぺい率 | 60% |
| 容積率 | 200% |
| 地目 | 宅地 |
| 用途地域 | 第一種住居 |
| 築年月 | 平成9年7月 |
| 現況 | 空き家 |
| 駐車場 | 駐車スペース3台 |
| 接道状況 | 西側 道路幅員2.8m |
| 引渡日 | 相談 |
| 学区 | 富士根南小 / 富士根南中 |
| 設備 | 電気・上水道・浄化槽・プロパンガス |
-
おすすめポイント
-
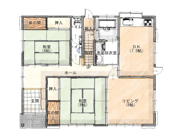
★間取り:6DK
★60坪以上の敷地
★生活便利な住宅地
★陽当たり良好
・道路後退有り
・下水道宅地内引き込み有り(接続無し)
・下水道宅地内引き込み有り(接続無し)
近隣情報
- 富士根南小学校・・・現地より約1,070m
- 富士根南中学校・・・現地より約740m
- 富士宮小泉簡易郵便局・・・現地より約160m
- 富士根保育園・・・現地より約350m
- ファミリーマート富士宮若宮店・・・現地より約540m
- セブンイレブン富士宮小泉店・・・現地より約570m
- ウエルシア富士宮小泉店・・・現地より約720m
- マックスバリュ富士宮若宮店・・・現地より約760m
- カインズ富士宮小泉店・・・現地より約970m
- 富士宮市役所・・・現地より約1,560m
- アクロスプラザ富士宮・・・現地より約1,620m

















