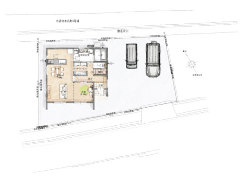
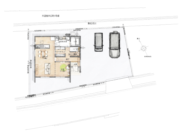
外観完成予想パース・間取り図・配置図・内観完成予想パース・省エネ性能ラベル
※外観・内観完成予想パースはイメージですので、実際とは異なる場合がございます。
※いつでも現地ご案内可能です。
富士市 柚木穴掘No.2
価格:3,324万円
-
POINT
-
スーパーやドラッグストアなど、買い物便利な立地♪
0円ソーラー 6.44kw搭載!
現地ご案内図
物件詳細
| 物件種目 | 分譲住宅(建売) |
|---|---|
| 価格 | 3,324万円 |
| 土地面積 | 184.05㎡(55.67坪) |
| 建物面積 | 93.57㎡(28.30坪) |
| 構造・規模 | 木造軸組工法2階建て |
| 所在地 | 富士市柚木字穴掘2-14外 |
| 交通 | JR 柚木駅 約600m |
| 土地権利 | 所有権 |
| 都市計画 | 市街化区域 |
| 建ぺい率 | 50% |
| 容積率 | 80% |
| 地目 | 宅地 |
| 用途地域 | 第一種低層 |
| 他の法令上の制限 | 建築基準法第22条区域、都市機能誘導区域外かつ居住誘導区域内 |
| 現況 | 建築中 |
| 駐車場 | 駐車スペース3台 |
| 接道状況 | 南側 幅員約4m 公道に接道 |
| 引渡日 | 令和8年7月頃 |
| 学区 | 富士第一小 / 富士中 |
| 設備 | 東京電力・公共上下水道・オール電化 |
-
おすすめポイント
-
★全3区画分譲地内
★500m以内にドラッグストアやスーパーのある便利な環境
★南面道路で陽当たり良好
★LDKは16帖
★子供の遊び場としても使えるリビング横の4.5帖の洋室
★廊下とリビングから出入り可能なファミリークローゼット
★ゆとりある広さの洗面脱衣室
★各居室にクローゼット完備
★2階ホールに収納付き
★駐車スペース3台分
★0円ソーラー 6.44kw搭載
★オール電化住宅
★耐震等級3
★20年の地盤保証付き
★嬉しい標準装備も多数♪
★売主のため仲介手数料なし
★川祥の建売 随時ご予約承ります
みらいエコ住宅2026事業の対象物件となります(補助金35万円)。
※補助金には予算枠があります。
【みらいエコ住宅2026事業についてはこちら】
【ローン返済例】 3,324万円借入の場合(40年返済/金利1.025%にて試算)
※借入する金融機関やご選択する商品によって金利や月々返済額は異なります。
毎月返済:74,281円 ボーナス返済:61,074円 ※ボーナス返済は年2回にて試算
※補助金には予算枠があります。
【みらいエコ住宅2026事業についてはこちら】
【ローン返済例】 3,324万円借入の場合(40年返済/金利1.025%にて試算)
※借入する金融機関やご選択する商品によって金利や月々返済額は異なります。
毎月返済:74,281円 ボーナス返済:61,074円 ※ボーナス返済は年2回にて試算
近隣情報
- 富士第一小学校・・・現地より約1,700m
- 富士中学校・・・現地より約1,200m
- マツモトキヨシ富士柚木店・・・現地より約220m
- ファミリーマート富士柚木店・・・現地より約280m
- ジャンボエンチョー・食鮮館タイヨー富士西店・・・現地より約500m
- 富士松岡郵便局・・・現地より約560m
- 業務スーパーエスポット富士松岡店・・・現地より約740m
- 富士市立岩松幼稚園・・・現地より約830m
- 杏林堂薬局富士松岡店・・・現地より約890m
- エブリィビッグデー西富士店・・・現地より約950m
- クリエイトエス・ディー富士松岡店・・・現地より約1,240m















