外観完成予想パース・間取り図・配置図・省エネ性能ラベル
※外観完成予想パースはイメージですので、実際とは異なる場合がございます。
※いつでも現地ご案内可能です。
富士市 南松野
価格:2,695万円
-
POINT
-
東名・国一バイパス、各方面へのアクセス良好!
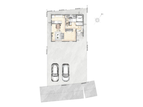
広々したLDKを間仕切りすると4LDKにも◎
現地ご案内図
物件詳細
| 物件種目 | 分譲住宅(建売) |
|---|---|
| 価格 | 2,695万円 |
| 土地面積 | 195.24㎡(59.06坪) |
| 建物面積 | 91.91㎡(27.79坪) |
| 構造・規模 | 木造軸組工法2階建て |
| 所在地 | 富士市南松野字丸崎2220-1、2219-13 |
| 交通 | JR 富士川駅 約5,700m |
| 土地権利 | 所有権 |
| 都市計画 | 市街化区域 |
| 建ぺい率 | 60% |
| 容積率 | 150% |
| 地目 | 宅地 |
| 用途地域 | 第二種中高層 |
| 他の法令上の制限 | 建築基準法第22条区域、第一種高度地区、埋蔵文化財包蔵地 |
| 現況 | 建築中 |
| 駐車場 | 駐車スペース4台 |
| 接道状況 | 南側 幅員4m 公道に接道 |
| 引渡日 | 令和8年8月頃 |
| 学区 | 富士川第二小中一貫校 / 富士川第二小中一貫校 |
| 設備 | 電気・公共上水道・浄化槽・プロパンガス |
-
おすすめポイント
-
★東名・国道1号バイパス、各方面へのアクセス良好
★動線の良い間取り
★収納豊富な住まい
★1階ホールにファミリークローゼット
★LDKは広々19.6帖
★リビングは4.5帖の洋室へ間仕切りも可能(3LDK→4LDKへ)
★キッチン、洗面脱衣室に収納完備
★洗面化粧台は脱衣室の外に独立して設置
★2階の各居室にクローゼット付き
★2階ホールにも収納完備
★20年の地盤保証付き
★嬉しい標準装備も多数♪
★売主のため仲介手数料なし
★川祥の建売 随時ご予約承ります
近隣情報
- 富士川第二小中一貫校松野学園・・・現地より約1,000m
- セブンイレブン富士南松野店・・・現地より約400m
- 清水銀行松野支店・・・現地より約800m
- ポテト松野店・・・現地より約900m
- 富士市立松野こども園・・・現地より約1,140m
- ウエルシア富士松野店・・・現地より約1,280m





