LAND INFO

土地・建売住宅

DATA

富士市 柚木松岡No.5

価格:3,320万円

POINT
富士山の望める住まい!
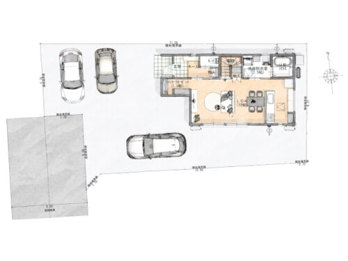
2階ホールにはランドリーコーナーを配置◎
■2月13日(金) 内観完成予想パース追加しました!

外観完成予想パース・内観完成予想パース・間取り図・配置図・建築予定地
※外観・内観完成予想パースはイメージですので、実際とは異なる場合がございます。
※いつでも現地ご案内可能です。

現地ご案内図

この物件についてWEBからのお問合せ

この物件について電話でのお問合せ
富士支店
0545-52-5312

最新情報はInstagramで!

物件詳細

物件種目 分譲住宅(建売)
価格 3,320万円
土地面積 193.45㎡(58.51坪)
建物面積 90.87㎡(27.48坪)
構造・規模 木造軸組工法2階建て
所在地 富士市柚木字河原42-23他
交通 JR 柚木駅 約500m
土地権利 所有権
都市計画 市街化区域
建ぺい率 60%
容積率 200%
地目 宅地
用途地域 第一種住居
他の法令上の制限 第一種高度地区、建築基準法第22条区域
現況 建築中
駐車場 駐車スペース3台
接道状況 西側 幅員5m 公道に接道
引渡日 令和8年5月頃
学区
設備 東京電力・公共上下水道・オール電化
おすすめポイント
★全9区画分譲地内
★富士山が望める立地
★開閉楽々スマートキー玄関ドア
★玄関ホール、リビング、キッチンに収納完備
★18帖の広々LDK
★衣類や掃除用具、書類など様々使えるリビングクローゼット
★音や匂いなどが漏れないリビング階段引戸を採用
★開放感のあるセミオープンキッチン
★水回りの集約した間取り
★階段を上がってすぐのスペースにランドリーコーナーを配置
★寝室にはウォークインクローゼット
★洋室を間仕切りすれば3LDKの間取りにも
★オール電化住宅
★GX志向型住宅
★耐震等級3
★断熱等級6
★20年の地盤保証付き
★嬉しい標準装備も多数♪
エコキュート、録画機能付きモニターホン、アルミ樹脂複合断熱窓、網戸付き、IHクッキングヒーター、浴室暖房乾燥機、全室LED照明完備、食器洗浄乾燥機付き
★売主のため仲介手数料なし
★川祥の建売 随時ご予約承ります
こちらの物件は、みらいエコ住宅2026補助金対象予定(GX志向型住宅)です。
暫定情報のため内容が変更となる可能性があります。

【ローン返済例】 3,320万円借入の場合(40年返済/金利1.0%にて試算)
※借入する金融機関やご選択する商品によって金利や月々返済額は異なります。
毎月返済:73,833円 ボーナス返済:60,788円 ※ボーナス返済は年2回にて試算

近隣情報

  • 富士第一小学校・・・現地より約1,500m
  • 富士中学校・・・現地より約600m
  • ファミリーマート富士松岡店・・・現地より約150m
  • 杏林堂薬局富士松岡店・・・現地より約250m
  • マツモトキヨシ富士柚木店・・・現地より約470m
  • ジャンボエンチョー・食鮮館タイヨー富士西店・・・現地より約500m
  • なかじま保育園・・・現地より約590m
  • フードストアあおき富士店・・・現地より約630m
  • 富士松岡郵便局・・・現地より約800m
  • ポテト岩本店・・・現地より約850m
  • 富士市立西図書館・・・現地より約1,320m