間取り図・外観完成予想パース・内観完成予想パース・省エネ性能ラベル
※外観・内観完成予想パースはイメージですので、実際とは異なる場合がございます。
※いつでも現地ご案内可能です。
島田市 旭二丁目F
価格:3,360万円
-
POINT
-
家族の“今”とこれからにちょうどいい!
LDK併設の4.5帖のフリールームがある家♪
現地ご案内図
物件詳細
| 物件種目 | 分譲住宅(建売) |
|---|---|
| 価格 | 3,360万円 |
| 土地面積 | 171.50㎡(51.87坪) |
| 建物面積 | 103.50㎡(31.30坪) |
| 構造・規模 | 木造軸組工法2階建て |
| 所在地 | 島田市旭二丁目7200-10 |
| 交通 | JR 六合駅 約1,300m |
| 土地権利 | 所有権 |
| 都市計画 | 非線引き区域 |
| 建ぺい率 | 60% |
| 容積率 | 150% |
| 地目 | 宅地 |
| 用途地域 | 第一種中高層 |
| 他の法令上の制限 | 建築基準法第22条区域 |
| 現況 | 建築中 |
| 駐車場 | 駐車スペース4台 |
| 接道状況 | 南側 公道に接道 |
| 引渡日 | 令和8年4月頃 |
| 学区 | 島田第五小 / 島田第二中 |
| 設備 | 中部電力・公営水道・浄化槽・オール電化 |
-
おすすめポイント
-
★収納充実プラン
★全室南向き
★開閉楽々スマートキー玄関ドア
★玄関クローク付き
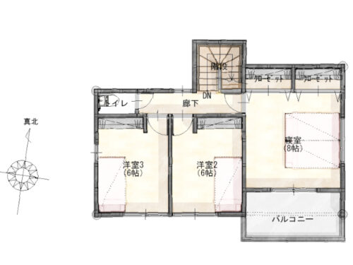
★リビング隣にの4.5帖のフリールーム
★LDKにはスタディカウンター付き
★人気の対面スタイルキッチン
★キッチンにはパントリー
★各居室にクローゼット完備
★駐車スペース4台分
★快適生活のご提案♪
・エコキュート
・IHクッキングヒーター
・全室LED照明
・浴室乾燥暖房機
・食器洗浄乾燥機
・録画機能付きテレビフォン
・アルミ樹脂複合断熱窓・網戸付き
★ZEH水準の省エネ住宅
★耐震等級3取得
★20年の地盤保証付き
★売主のため仲介手数料なし
★川祥の建売 随時ご予約承ります
【ローン返済例】 3,400万円借入の場合(40年返済/金利0.7%にて試算)
※借入する金融機関やご選択する商品によって金利や月々返済額は異なります。
Aプラン → 毎月返済:81,232円 ボーナス返済:00,000円
Bプラン → 毎月返済:69,286円 ボーナス返済:71,766円 ※ボーナス返済は年2回にて試算
※借入する金融機関やご選択する商品によって金利や月々返済額は異なります。
Aプラン → 毎月返済:81,232円 ボーナス返済:00,000円
Bプラン → 毎月返済:69,286円 ボーナス返済:71,766円 ※ボーナス返済は年2回にて試算
近隣情報
- 島田第五小学校・・・現地より約50m
- 島田第二中学校・・・現地より約2,900m
- セブンイレブン島田旭2丁目店・・・現地より約300m
- ローソンひばり島田道悦店・・・現地より約750m
- SACCS島田・・・現地より約1,120m
- アピタ島田店・・・現地より約1,300m
- ウエルシア島田道悦店・・・現地より約1,500m












